鄭州泳潔游泳池水處理設備有限公司
全國銷售熱線:400-0870-358
國內銷售部:
于經理:15515581312 (河南、湖南、湖北、廣東、廣西、海南)
金經理:15538318375 (山東、安徽、江蘇、浙江、上海、福建、江西)
李經理:15515580783 (北京、天津、河北、山西、內蒙)
王經理:15517149327 (陜西、甘肅、寧夏、青海、新疆、黑龍江、吉林、遼寧)
肖經理:13213150046 (四川、重慶、貴州、西藏、云南)
YJ系列重力式水力全自動曝氣精濾機是我公司根據傳統的重力式無閥濾池的基本原理,并通過吸收、改進、創新形成了具有獨自特點的,擁有自主知識產權的游泳池水處理設備。

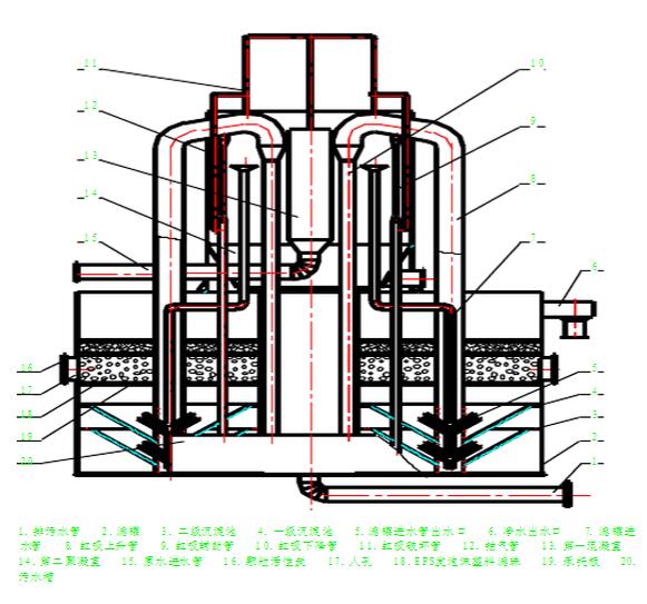
自動曝氣復合介質精濾機組裝圖
1.1YJ系列重力式水力全自動曝氣精濾機的基本結構
1)自動曝氣水流分配系統
2)復合質精濾系統(四個一組)
3)自動反沖洗排污系統
4)二次旋流曝氣增氧系統
5)浮選分離系統
1.2技術原理

泳潔(YJ)水力全自動曝氣精濾機工作原理圖
該機工作時,原水由水泵送至自動曝氣水流分配系統,該系統模擬自 然界的"瀑布水流"方式,通過曝氣系統的分配水槽,將水均勻的"切"成薄膜, 增加水流與空氣的接觸面積,使之空氣中的氧氣與水流充分混合進行曝氣溶氧,使得水中富含溶解氧;利用溶解氧與污染物發生充分的氧化反應,由此去除水中的有害物質,同時水中的氨氣、二氧化碳等有害氣體隨之從水流表面溢出。

自動曝氣復合介質精濾機曝氣溶氧示意圖
同時,通過氣水混合,可增強水中污染物的凝聚效果,從而有利于下一步過濾介質的有效截污。通過自動曝氣溶氧以后的水流經配水系統將水流均勻的分配到由四個過濾器組成的精濾系統。水流經過由5~9層天然復合介質組成的濾層時,水中的懸浮物和膠體被截留于濾料表面和內層空隙中,過濾水由集水系統排出。
隨著過濾過程的進行,污物在濾料層中不斷積累,濾料層內的孔隙由上至下逐漸被堵塞,水流通過濾料層的阻力和水頭損失隨之逐步增大,水頭損失增大的同時,虹吸系統的水位就隨之上升。當水頭損失達到允許的最大值或出水水質達到某一規定值時,虹吸管的水位達到虹吸管的頂部,這時過濾系統停止工作,系統進行浮選分離和反沖洗工作。反沖洗時,沖洗水的流向與過濾完全相反,這時,水流的方向是從濾池的底部向濾池上部流動。沖洗水的流向是:首先進行配水系統向上流過承托層和濾料層,沖走沉積于濾層中的污物和液面上部的油脂污染物。然后排于下水道或沉淀池。沖洗完成后,即可恢復進行下一循環過程。

浮選示意圖
在過濾過程中,水中的污染物主要通過以下三種作用被去除。
(1)篩濾作用:濾料由大小不同的多介質組成,介質之間的空隙就像一個篩子,廢水中比孔隙大的雜質被濾料篩除,并逐漸形成由被截留的固體顆粒構成。
(2)沉淀作用:可以將濾料看成是一層層疊起來的沉淀池,廢水通過濾料層時,眾多濾料表面提供了巨大的沉降面積,廢水中的部分顆粒會沉淀到濾料顆粒的表面上而被去除。濾料顆粒越小,沉降面積越大,濾速越小,則水流越平穩,這些都有利于懸浮物的沉降。
(3)接觸吸附作用:該設備采用的濾料是采用的多介質濾料,如活性炭、錳鐵礦、磁鐵礦等,具有巨大的表面積,因此,存在著較強的吸附能力,對懸浮物具有明顯的物理吸附作用。廢水在濾料孔隙中曲折流動時,雜質顆粒與濾料有非常多的接觸機會,從而被吸附到濾料顆粒表面,從廢水中去除。被吸附的雜質顆粒一部分會由于水流而被剝落,但是馬上又會被下層的濾粒所吸附截留,濾料顆粒越小,吸附和接觸絮凝的效果也越好。通過多層過濾介質過濾以后的清水,匯集后流入聚水槽,在槽中通過自動曝氣旋流槽對清水再次曝氣溶氧,而使處理后的水更加活化、鮮化。
1.3技術特點:
1、節電80%,節水90%,節藥90%。
2、全部工程塑料材質,無腐蝕,不用換襯里,不用換濾料,設備使用壽命長達40年。
3、水力全自動化設備,無閥門,無維護,節省人力100%。
4、全自動曝氣增氧技術,有效去除水體中尿素,溶解酶等有機物。
5、獨特的多層復合過濾介質,出水濁度小于0.3NTU,水質優于飲用水標準。
6、根據濾層含污量,自動調節反沖洗周期,自動實施反沖洗,待濾層沖洗干凈后,反沖洗自動停止,充分節水。
7、無需投加混凝劑,除藻劑,一池水永不換,永遠天藍透明。
8、設備結構緊湊,占地面積小,節省土建50%。